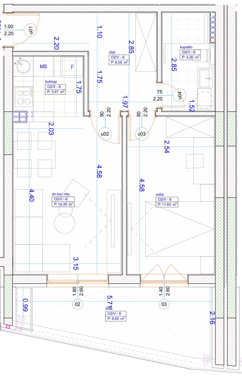
S9-V SPRAT

Jednosoban stan

Peti sprat

Jednosoban stan

površina

Peti sprat jednosoban stan

01.
Dn. bor.+trp.
14.45m2
02.
Kuhinja
2.88m2
03.
Kupatilo
4.40m2
04.
Lođa
2.38m2
05.
Soba
9.06m2
06.
Ulaz
3.51m2
Total:
36.68m2

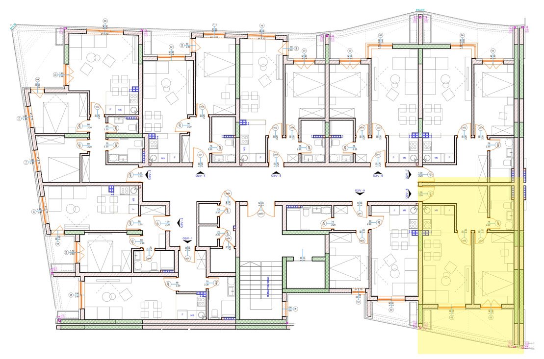
Sjajne karakteristike

Projekat Kompas

Atraktivna lokacija

Stanovi na jugu, u neposrednoj blizini svih bitnih sadržaja. Idealan izbor za udoban gradski život.

Termo fasada

Koristimo visokokvalitetnu termo fasadu koja pruža optimalnu izolaciju i energetsku efikasnost, čineći vaše domove ekonomičnim.

multisplit klima uređaji

U stanovima instaliramo multisplit klima uređaje visoke efikasnosti, koji osiguravaju optimalnu temperaturu i kvalitet vazduha.

parket od presovanog hrasta

Koristimo parket od visokokvalitetnog presovanog hrasta koji pruža izuzetnu izdržljivost i estetski ugodan izgled, čineći vaš dom toplim i elegantnim.

STOLARIJA VISOKOG KVALITETA

Ugrađujemo PVC stolariju visokog kvaliteta, koja pruža izolaciju od buke i toplotu, čineći vaše stanove udobnim i energetski efikasnim.

Energetiski efikasno

Naši objekti su osmišljeni s fokusom na energetsku efikasnost, što doprinosi vašoj udobnosti i smanjenju troškova energije.