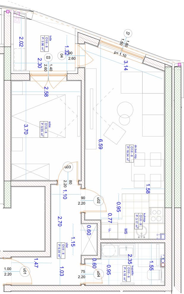
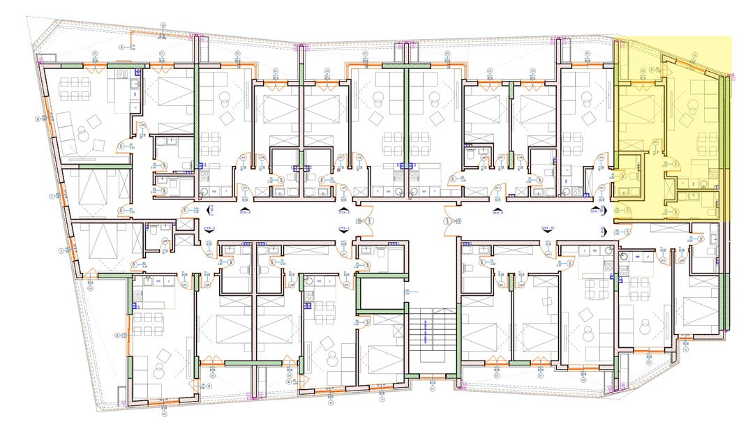
S8-II SPRAT
Jednosoban stan
Drugi sprat
Jednosoban stan
površina
Drugi sprat - jednosoban stan
Dn. bor.+trp.
16.34m2Kuhinja
3.17m2Kupatilo
4.16m2Lođa
2.97m2Soba
9.55m2Ulaz
6.35m2Total:
42.54m2
Sjajne karakteristike
Projekat Kompas
Atraktivna lokacija
Stanovi na jugu, u neposrednoj blizini svih bitnih sadržaja. Idealan izbor za udoban gradski život.
Termo fasada
Koristimo visokokvalitetnu termo fasadu koja pruža optimalnu izolaciju i energetsku efikasnost, čineći vaše domove ekonomičnim.
multisplit klima uređaji
U stanovima instaliramo multisplit klima uređaje visoke efikasnosti, koji osiguravaju optimalnu temperaturu i kvalitet vazduha.
parket od presovanog hrasta
Koristimo parket od visokokvalitetnog presovanog hrasta koji pruža izuzetnu izdržljivost i estetski ugodan izgled, čineći vaš dom toplim i elegantnim.
STOLARIJA VISOKOG KVALITETA
Ugrađujemo PVC stolariju visokog kvaliteta, koja pruža izolaciju od buke i toplotu, čineći vaše stanove udobnim i energetski efikasnim.
Energetiski efikasno
Naši objekti su osmišljeni s fokusom na energetsku efikasnost, što doprinosi vašoj udobnosti i smanjenju troškova energije.
