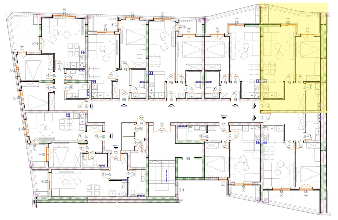
S7-IV SPRAT
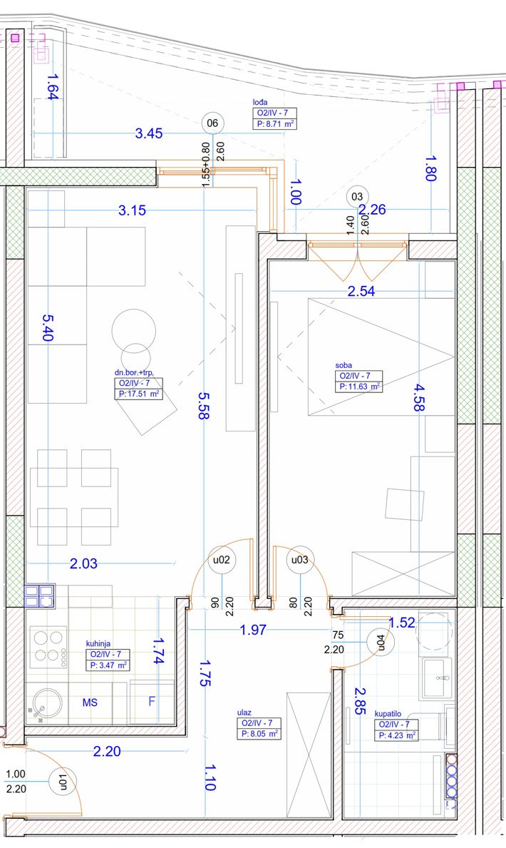
Jednosoban stan
Četvrti sprat
Jednosoban stan
površina
Četvrti sprat jednosoban stan
Dn. bor.+trp.
17.51m2Kuhinja
3.47m2Kupatilo
4.23m2Lođa
6.53m2Soba
11.63m2Ulaz
8.05m2Total:
51.42m2
Sjajne karakteristike
Projekat Kompas
Atraktivna lokacija
Stanovi na jugu, u neposrednoj blizini svih bitnih sadržaja. Idealan izbor za udoban gradski život.
Termo fasada
Koristimo visokokvalitetnu termo fasadu koja pruža optimalnu izolaciju i energetsku efikasnost, čineći vaše domove ekonomičnim.
multisplit klima uređaji
U stanovima instaliramo multisplit klima uređaje visoke efikasnosti, koji osiguravaju optimalnu temperaturu i kvalitet vazduha.
parket od presovanog hrasta
Koristimo parket od visokokvalitetnog presovanog hrasta koji pruža izuzetnu izdržljivost i estetski ugodan izgled, čineći vaš dom toplim i elegantnim.
STOLARIJA VISOKOG KVALITETA
Ugrađujemo PVC stolariju visokog kvaliteta, koja pruža izolaciju od buke i toplotu, čineći vaše stanove udobnim i energetski efikasnim.
Energetiski efikasno
Naši objekti su osmišljeni s fokusom na energetsku efikasnost, što doprinosi vašoj udobnosti i smanjenju troškova energije.
