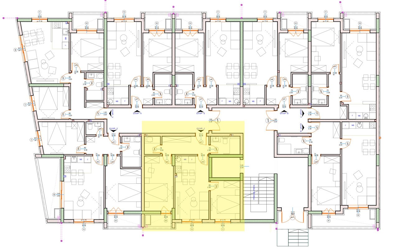
S1-VISOKO PRIZEMLJE

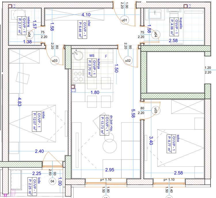
Dvosoban stan

Visoko prizemlje

Dvosoban stan

površina

Visoko prizemlje - dvosoban stan

01.
Dn. bor.+trp.
13.73m2
02.
Kuhinja
2.70m2
03.
Kupatilo
4.06m2
04.
Lođa
1.69m2
05.
Soba
8.77m2
06.
Soba
12.07m2
07.
Ulaz
6.46m2
08.
Vešeraj
2.17m2
Total:
51.65m2

Sjajne karakteristike

Projekat Kompas

Atraktivna lokacija

Stanovi na jugu, u neposrednoj blizini svih bitnih sadržaja. Idealan izbor za udoban gradski život.

Termo fasada

Koristimo visokokvalitetnu termo fasadu koja pruža optimalnu izolaciju i energetsku efikasnost, čineći vaše domove ekonomičnim.

multisplit klima uređaji

U stanovima instaliramo multisplit klima uređaje visoke efikasnosti, koji osiguravaju optimalnu temperaturu i kvalitet vazduha.

parket od presovanog hrasta

Koristimo parket od visokokvalitetnog presovanog hrasta koji pruža izuzetnu izdržljivost i estetski ugodan izgled, čineći vaš dom toplim i elegantnim.

STOLARIJA VISOKOG KVALITETA

Ugrađujemo PVC stolariju visokog kvaliteta, koja pruža izolaciju od buke i toplotu, čineći vaše stanove udobnim i energetski efikasnim.

Energetiski efikasno

Naši objekti su osmišljeni s fokusom na energetsku efikasnost, što doprinosi vašoj udobnosti i smanjenju troškova energije.