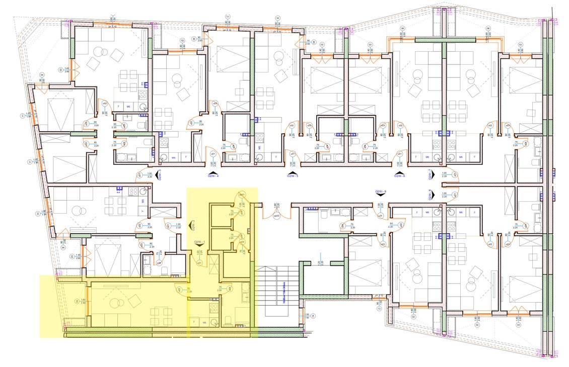
S1-III SPRAT
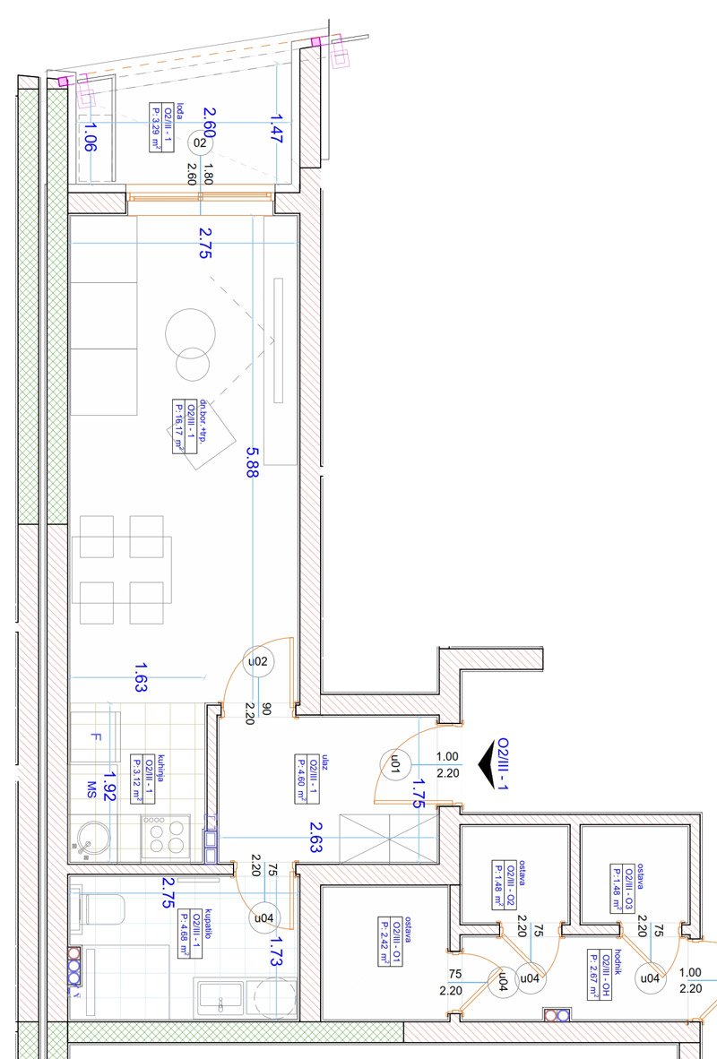
Garsonjera
Treći sprat
Garsonjera
površina
Treći sprat garsonjera
Dn. bor.+trp.
16.17m2Kuhinja
3.12m2Kupatilo
4.68m2Lođa
2.47m2Ulaz
4.60m2Total:
31.04m2
Sjajne karakteristike
Projekat Kompas
Atraktivna lokacija
Stanovi na jugu, u neposrednoj blizini svih bitnih sadržaja. Idealan izbor za udoban gradski život.
Termo fasada
Koristimo visokokvalitetnu termo fasadu koja pruža optimalnu izolaciju i energetsku efikasnost, čineći vaše domove ekonomičnim.
multisplit klima uređaji
U stanovima instaliramo multisplit klima uređaje visoke efikasnosti, koji osiguravaju optimalnu temperaturu i kvalitet vazduha.
parket od presovanog hrasta
Koristimo parket od visokokvalitetnog presovanog hrasta koji pruža izuzetnu izdržljivost i estetski ugodan izgled, čineći vaš dom toplim i elegantnim.
STOLARIJA VISOKOG KVALITETA
Ugrađujemo PVC stolariju visokog kvaliteta, koja pruža izolaciju od buke i toplotu, čineći vaše stanove udobnim i energetski efikasnim.
Energetiski efikasno
Naši objekti su osmišljeni s fokusom na energetsku efikasnost, što doprinosi vašoj udobnosti i smanjenju troškova energije.
