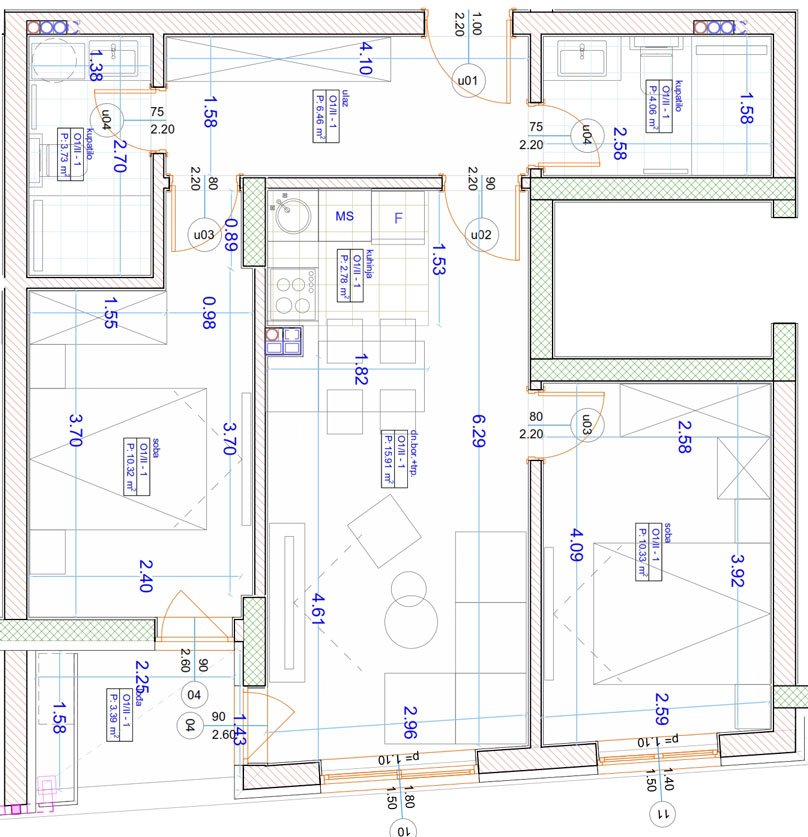
S1-II SPRAT
Dvosoban stan
Drugi sprat
Dvosoban stan
površina
Drugi sprat - dvosoban stan
Dn. bor.+trp.
15.91m2Kuhinja
2.78m2Kupatilo
3.73m2Kupatilo
4.06m2Lođa
2.54m2Soba
10.32m2Soba
10.33m2Ulaz
6.46m2Total:
56.13m2
Sjajne karakteristike
Projekat Kompas
Atraktivna lokacija
Stanovi na jugu, u neposrednoj blizini svih bitnih sadržaja. Idealan izbor za udoban gradski život.
Termo fasada
Koristimo visokokvalitetnu termo fasadu koja pruža optimalnu izolaciju i energetsku efikasnost, čineći vaše domove ekonomičnim.
multisplit klima uređaji
U stanovima instaliramo multisplit klima uređaje visoke efikasnosti, koji osiguravaju optimalnu temperaturu i kvalitet vazduha.
parket od presovanog hrasta
Koristimo parket od visokokvalitetnog presovanog hrasta koji pruža izuzetnu izdržljivost i estetski ugodan izgled, čineći vaš dom toplim i elegantnim.
STOLARIJA VISOKOG KVALITETA
Ugrađujemo PVC stolariju visokog kvaliteta, koja pruža izolaciju od buke i toplotu, čineći vaše stanove udobnim i energetski efikasnim.
Energetiski efikasno
Naši objekti su osmišljeni s fokusom na energetsku efikasnost, što doprinosi vašoj udobnosti i smanjenju troškova energije.
